Portfolio — Overview
A sampling of the visual work Steve has created through the last few years. Much has been excluded for the sake of brevity…

Landscape Photography
This is where Steve first discovered the pure joy of creating his own photographs and sharing them with others. He increased his skill over time and it grew along with the size of his cameras and lenses. His main subjects are found in the National Parks of the West and Southwest including, Yosemite, Sequoia, King’s Canyon, Joshua Tree, The Grand Canyon, Zion, Bryce Canyon, and more.

Real Estate Photography
His passion for architecture and love of landscape photography naturally blended into a thriving real estate photography business. With an eye for design and a deep appreciation for the built environment, he creates compelling images that highlight the unique features of each property. This combination allows him to capture architectural details and surroundings in a way that not only showcases the space but also tells a visual story that resonates with potential buyers and clients.
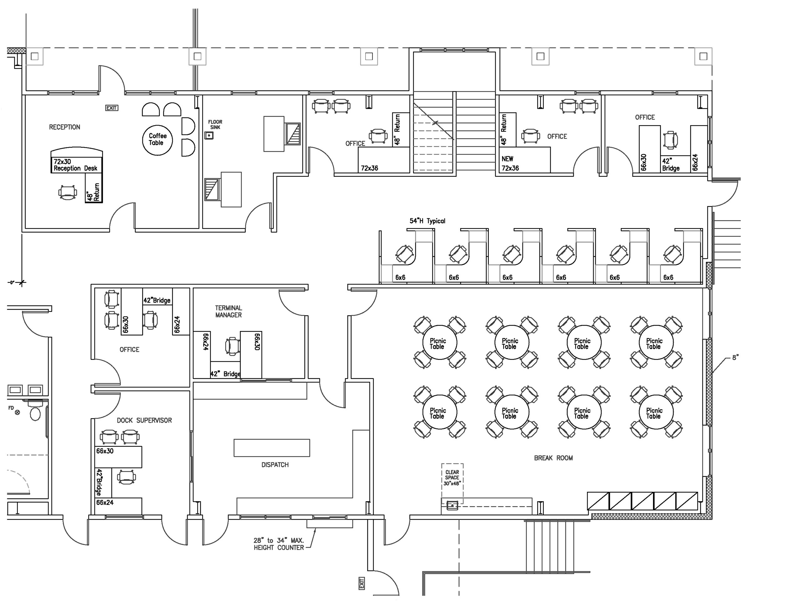
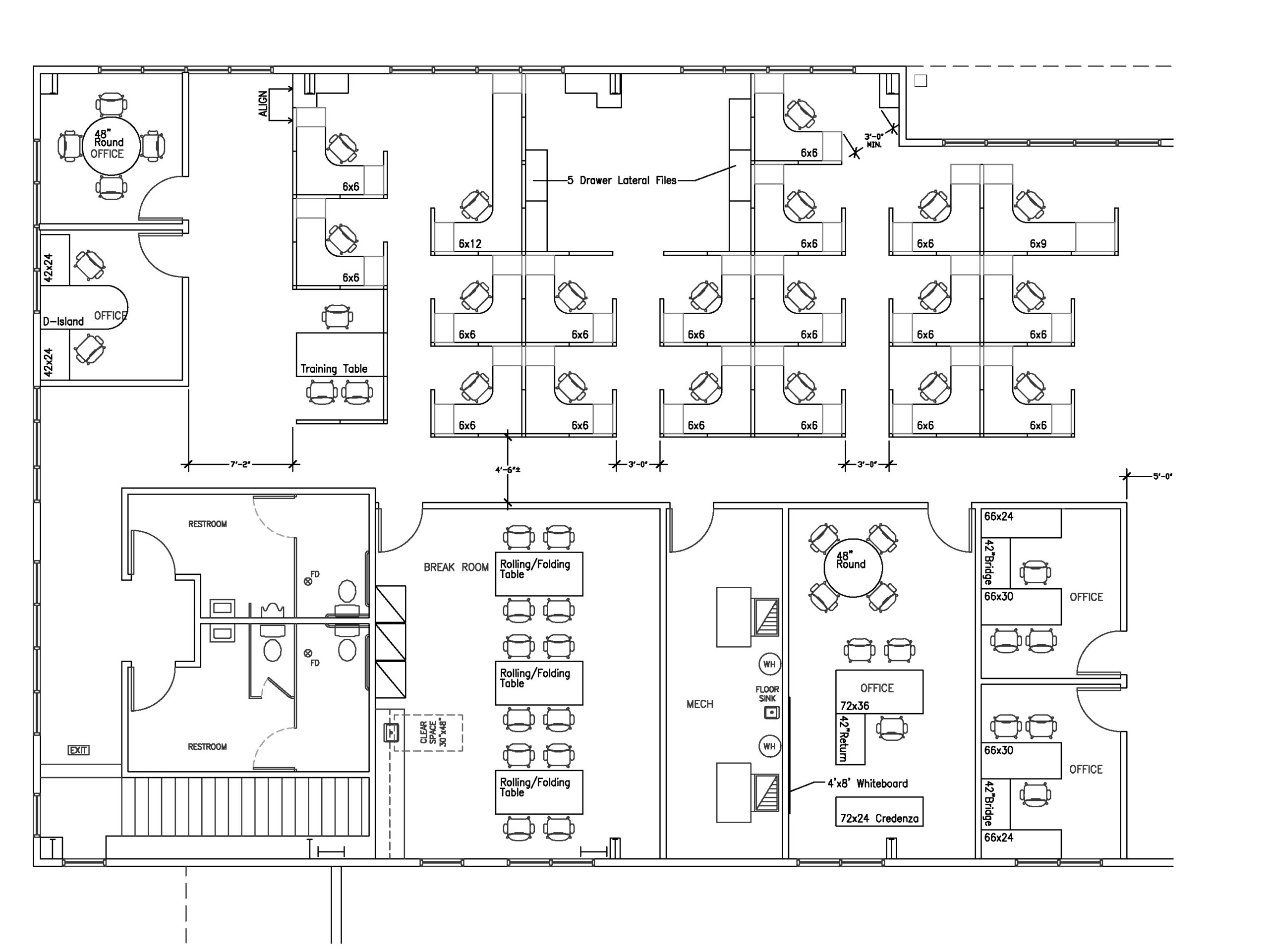
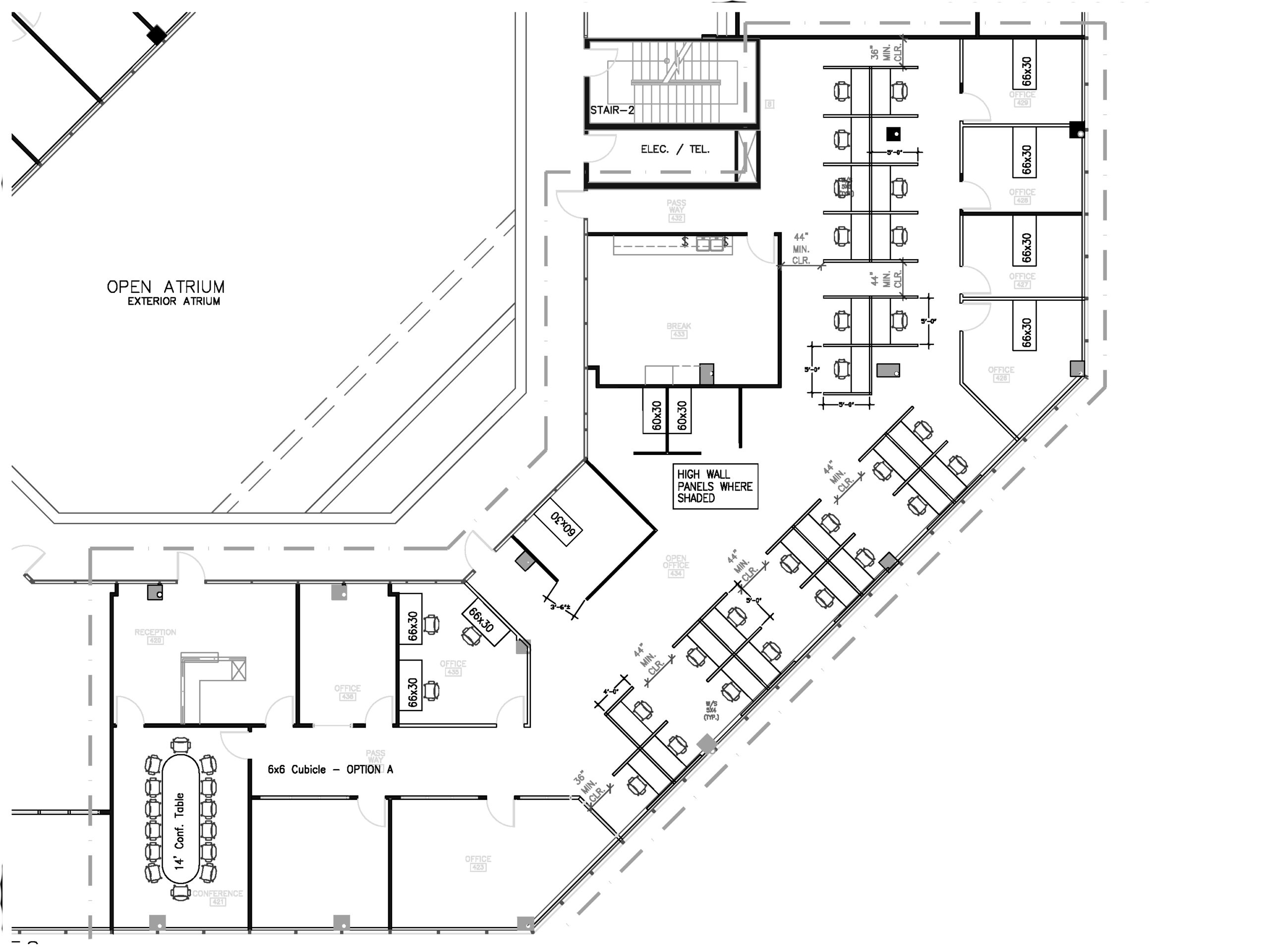
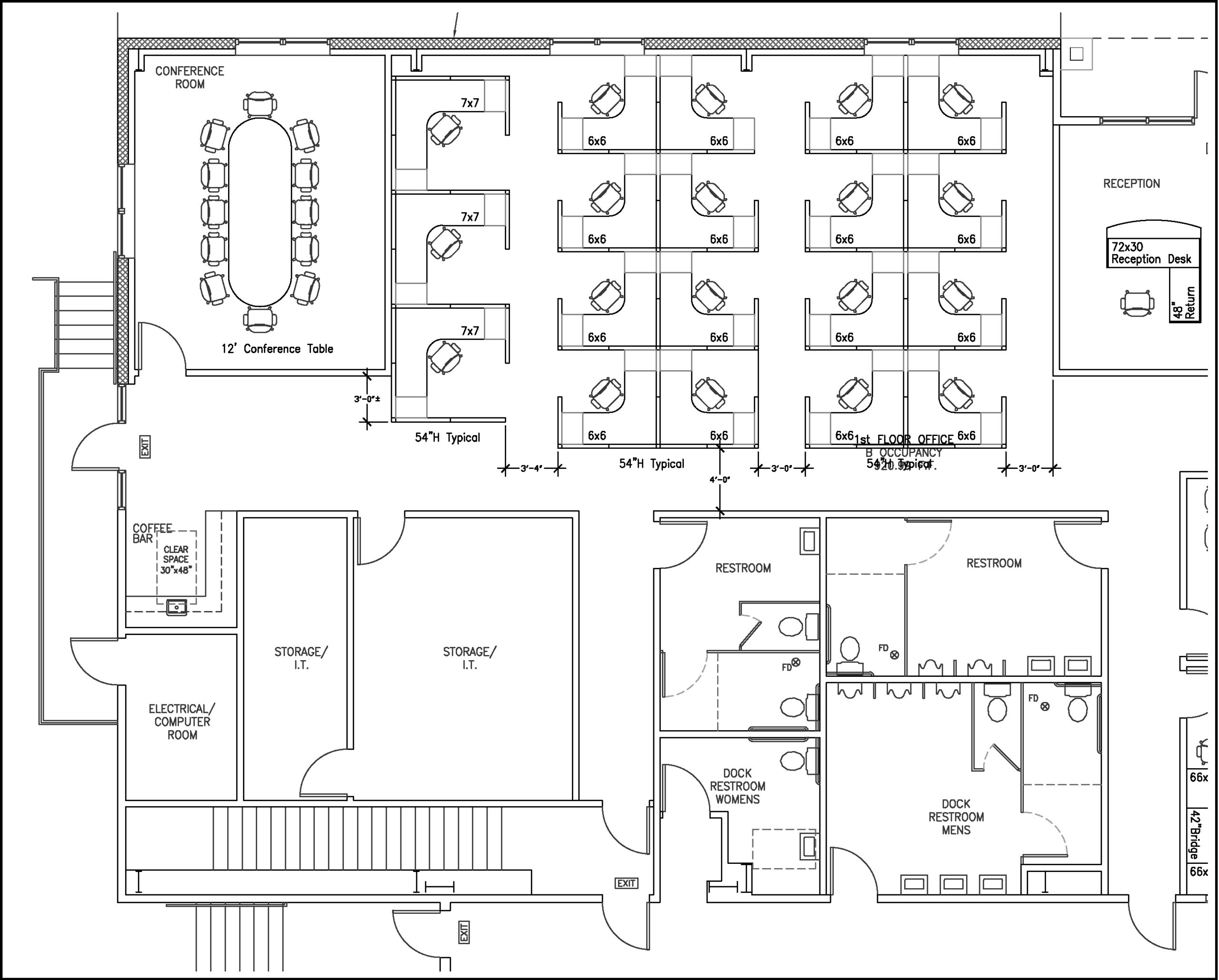
Architectural Drafting & Space Planning
With an academic foundation in architecture and over a decade of experience using AutoCAD, Steve has developed an advanced ability to read, interpret, and create detailed architectural drawings. His expertise spans from surveying large commercial buildings, to drafting precise floor plans, to developing comprehensive as-built documents. This skill set enables him to translate complex design concepts into accurate visual representations, ensuring clarity and precision in every project.
Data Analysis: Large Building Measurement and Reporting
Steve spent over 5 years documenting the as-built conditions of commercial buildings across the country. Part of this work was compiling and analyzing large data sets to provide clients with a comprehensive report of their building’s valuable square footage.
He also accrued more than 5 years consulting with clients and providing them optimized space plans to maximize their unique spaces.

Digital Art: Photoshop, Blender, A.I.
One of Steve’s favorite pastimes is creating art in various forms. Whether through photo manipulation, drawing, painting, woodworking, 3D sculpting in Blender, or exploring the creative potential of A.I., he finds the artistic process to be a meditative, relaxing, and restorative experience.
The image above features a large sculpture he photographed in Joshua Tree, CA, then enhanced with a digitally modified sky. To the left is his initial experiment with 3D modeling in Blender, following a YouTube tutorial to create the classic coffee and donut scene. Below is a series titled “Earth Emergency,” developed using generative A.I. to explore the current capabilities of this technology. While there is ongoing debate about whether A.I.-generated work constitutes “art,” he found the creative process to be comparable and, more importantly, accessible for individuals who may lack traditional artistic skills but wish to express themselves visually.
Earth Emergency Series
A.I. Prompted Digital Art
Steve is always working to level-up his skillset and strongly believes in continuous learning and self-improvement.

Project Readiness
A diverse professional background has equipped him with a strong ability to adapt to change and thrive in dynamic environments.
Working in various roles—from consulting and project management to sales and creative services—has given him a broad perspective and the flexibility to approach challenges with an open mind and innovative solutions.
This adaptability, coupled with a proven track record of navigating complex situations, enables Steve to seamlessly transition between projects, industries, and cultures, making him a versatile and resourceful asset in any setting.
